Die Tapetentüre: Das flächenbündige Türblatt steht im Blickpunkt

06.08.2020

Küffner hat ein neues Produkt-Highlight: Die Tapetentüre. Durch den verdeckten Einsatz von Türzargen konzentriert sich die Wahrnehmung ganz auf das Türblatt, das dann im besten Falle wie ein 2-dimensionales Möbelstück den Raum mitgestaltet. Oder, der Türdurchgang wird dezent zurückgenommen, sodass die Tür unscheinbar mit der Wand verschmilzt und hinter der Tapete verschwindet, was dieser Art - der Tapetentür - ihren ursprünglichen Namen gab. Ganz gleich für welchen Weg man sich entscheidet, die Zargen der Serie ZEROLINE bieten ein hohes Maß an Gestaltungsfreiheit für den Planer.

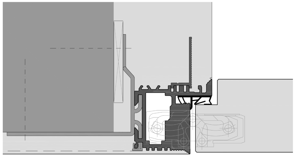
Bei geschlossener Tür ist die Zarge der Tapetentür unsichtbar, die Ansicht reduziert sich auf “Null”, die Zarge ist somit Bestandteil der Wand. Das universelle Profil der Küffner Tapetentüren kann dabei band- oder bandgegenseitig flächenbündig montiert werden. Der stabile Rahmen dient als Putzprofil, Dichtungsaufnahme und Verbindung zur Wand. Im System inbegriffen sind spezielle Putzgewebe, die in das Aluminiumprofil eingeklipst werden und für einen abrissfreien Wandanschluss sorgen. Verdeckte Bandsysteme sowie ein Magnetfallenschloss ergänzen die Türblätter.

Mehr Informationen finden Sie hier oder bei Ihrem Link Beraterteam.